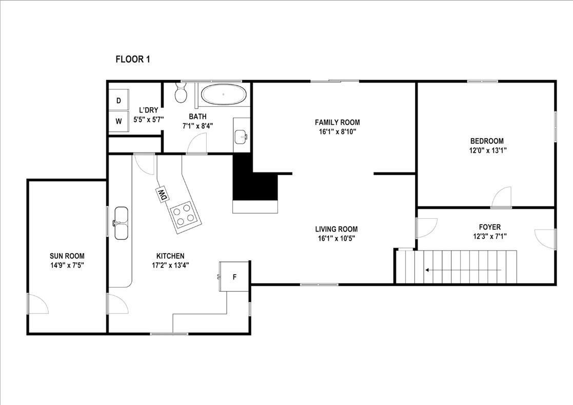
Here’s an amazing opportunity mere steps from historic downtown Armstrong! If you’re looking for a chance to build a ton of sweat equity, this property is for you. This 4 Bedroom, 2 Bathroom home built around 1902 has great bones and is situated on a good sized lot. The home is in need of renovations but is priced well below comparables to give a buyer the opportunity to build their dream, and make some equity. Fantastic location on adorable Patterson Avenue close to town and nature trials on Meighan Creek. All measurements are considered approximate and should be verified if important. (id:17834)